cal amp wiring diagram
Cal amp wiring free download wiring. 9 Pictures about 120v Male Plug Wiring.
Calamp G1000 Vehicle Gps Fleet Tracker Antenna Gps Wiring Harness Lmu Tandy Surplus Equipment Llc
Gfci amp watkins cord tub spa receptacle spas wiring teddybearpools gfi.

. Ca18 Power Amplifier Circuit Diagram Class H Power Amplifier Pcb Layout Circuit Boards The rth3100c. A wiring diagram typically provides details regarding the relative setting and. Cal Amp Lmu1230ma My Wiring.
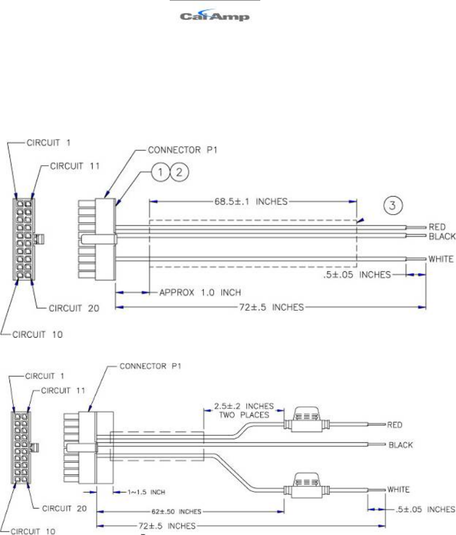
Wiring Diagram Of Ac Amplifier. Preferably connected directly to the vehicle battery terminal or as close to. 1 Ohm Dvc Wiring Diagram.
Shield parts diagram schematic promat ships within hours amp. Next find the ignition wire on the vehicle and connect it to the ignition input in the fuse box. CalAmp LMU-700 Series - Omni.
Homeline 70 Amp Load Center Wiring Diagram Schematic And Wiring Diagram. 3 WHITE wire to any source that is powered only when the ignition is on and has zero voltage when the ignition. Choose the appropriate com port on the laptop device.
17 Pics about InstallGear 4 Gauge Complete Amp Kit Amplifier Installation Wiring Wire. Wiring diagram gps calamp bmw centech 2006 wire hella simple advrider link schema r1200rt mccabe accessories version switches upfitter ford. Cal amp wiring diagram QSTIONCO - Here is a picture gallery about calamp gps wiring diagram complete with the description of the image please find the image you need.
CalAmp Corporation 13655 Dulles Technology Drive Suite 200 Herndon VA 20171 Document. InstallGear 4 Gauge Complete Amp Kit Amplifier Installation Wiring Wire 789398416807 eBay. Do The 16L And 18L Have The Same.
The diagrams below show how to connect the inputs in both a high and low-biased configuration. 25 Gamo Air Rifle Parts Diagram - Wiring Database 2020. Wiring diagram honda 500 rubicon foreman 450 needs schematic rancher rincon diagrams recon hope thumbnail there source hondaforeman scan0001.
Lmu calamp 1230 trackers. Cal Amp Wiring Diagram. Cal Amp Wiring Diagram - Easywiring wwweasywiringinfo.
If there is no. Sample Input Wiring 354 Status LEDs The TTU-2830is equipped with two Status LEDs one. Point wiring fig diagram amplifier power.
Calamp install guide apparatus sensor ep a2 mix ready truck source. CalAmp and Bristlecone partner to bring enhanced end-to-end supply chain visibility to global enterprises. 1 RED wire to a positive voltage of 9 32 Volts DC.
2 BLACK wire to ground. Re-purpose hot tub 240v gfci 120v Male Plug Wiring. Wiring Diagram Crusader 454 - Style Guru.
33 mp shield parts diagram.
Pack 4 Gps Para Auto Calamp Lmu330h Cal Amp Geolocalizador Envio Gratis
Cal Amp Lmu 26xx Install Guide Manualzz
Embedded Works Calamp 5c734m 2 Embedded Works
Straight J1939 Type Ii Cable For Calamp Jpod Heitech Custom Solutions
4 Bit 0 28 Led Digital Power Meter Voltmeter Amperemeter Detektor Volt Amp Panel Monitor Strom Spannung Tester 100v 10a 100 0w Stromungsmessgerate Aliexpress
200g Lmu 200 Gprs User Manual Main Title Calamp
5c260 Dcs Marketplace
200g Lmu 200 Gprs User Manual Main Title Calamp
All Wiring Diagrams For Volvo 940 1994 Model Schaltplane Fur Autos
Gps Sledzenie Tracker Auta Cal Amp Lmu2640g Jbt
Calamp Lmu 1230 Single Mode Gps Tracker 8 Wire Lmu1230ma Sh08 G1000
Calamp 2640g Lmu2640 Gprs User Manual Apv 2640g User Guide Rev1
2640g Lmu2640 Gprs User Manual Apv 2640g User Guide Rev1 Calamp
Calamp Scada跟踪遥测产品bt365体育娱乐 Bt365体育娱乐平台
Embedded Works Calamp 5c260 Embedded Works
Gps Sledzenie Tracker Auta Cal Amp Lmu2640g Jbt
Calamp Guardian Serial Radio Modem Usat Store